Analisi dell’area di intervento e del sistema vincolistico
In forza dell’importanza strategica che il lotto di intervento riveste per l'intera cittadina di Milazzo, l'analisi dello “stato di fatto” non può limitarsi all’area di sedime, ma deve dilatarsi ad abbracciare le molteplici relazioni ed emergenze contestuali del paesaggio “denso” e articolato in cui la stessa è immersa.
Le strategie di analisi e di intervento vanno dunque verificate alle diverse scale del paesaggio, del territorio e della città.
Alla scala paesaggistica, infatti, la vivacità urbana della cittadina si estende fino al promontorio e all’area SIC “ITA030032 Capo Milazzo”, che lo impreziosisce; per poi immergersi nella suggestiva aura del mito. La Grotta di Polifemo, le prospicienti Isole Eolie, il vicino paesaggio dello Stretto, la presenza costante dell’Etna, e tutte le altre emergenze storico-culturali e naturalistiche del circondario, dal Castello a Monte Trino, costituiscono una dorsale di punti significativi che connota e struttura il paesaggio circostante, distendendosi dall’estremità del Capo fino alle aree periferiche e alla Piana di Milazzo, dove appunto si inserisce anche la nuova infrastruttura del Parco tra i Mari.
Alla scala urbanistica, la posizione nodale dell’area rispetto alle principali arterie cittadine, ai nodi ferroviari e autostradali, assegna alla stessa il ruolo di una naturale “porta” di accesso alla penisola mamertina o (in uscita) al territorio stesso, anche grazie agli imponenti flussi turistici da e verso le Isole Eolie.
Alla scala urbana è certamente la vicinanza al complesso della Montecatini (destinato a futura riqualificazione) ad introdurre ulteriori suggestioni progettuali, unitamente alla forte relazione con le richiamate attività portuali e urbane del vicino centro storico, che devono essere riammagliate e reinserite nel più generale processo di riqualificazione urbana e ambientale in atto nella cittadina.
Rilevante appare, segnalare che l’intero lotto di intervento ricade in un’area di interesse archeologico, ai sensi dell’art.142, c.1, lett. M; area che ha già restituito ad oggi una notevole quantità di reperti archeologici in zone molto prossime a quella di intervento.
Analisi dell’area di intervento
Il comparto di intervento, esteso circa 27.000,00 mq è contraddistinto da una situazione estremamente pianeggiante, caratterizzata dalla perfetta orizzontalità del vecchio piano del ferro oramai in disuso, e dalla importante preesistenza della Stazione vecchia.
Da un punto di vista urbano, il lotto ricade in un’area di margine, decisamente antropizzata, caratterizzata dal suo lieve distaccarsi in altezza dai tracciati stradali circostanti e dalla presenza vicina e importante dei valori paesaggistici della Piana di Milazzo.
Analisi dell’area di intervento e del sistema vincolistico
In forza dell’importanza strategica che il lotto di intervento riveste per l'intera cittadina di Milazzo, l'analisi dello “stato di fatto” non può limitarsi all’area di sedime, ma deve dilatarsi ad abbracciare le molteplici relazioni ed emergenze contestuali del paesaggio “denso” e articolato in cui la stessa è immersa.
Le strategie di analisi e di intervento vanno dunque verificate alle diverse scale del paesaggio, del territorio e della città.
Alla scala paesaggistica, infatti, la vivacità urbana della cittadina si estende fino al promontorio e all’area SIC “ITA030032 Capo Milazzo”, che lo impreziosisce; per poi immergersi nella suggestiva aura del mito. La Grotta di Polifemo, le prospicienti Isole Eolie, il vicino paesaggio dello Stretto, la presenza costante dell’Etna, e tutte le altre emergenze storico-culturali e naturalistiche del circondario, dal Castello a Monte Trino, costituiscono una dorsale di punti significativi che connota e struttura il paesaggio circostante, distendendosi dall’estremità del Capo fino alle aree periferiche e alla Piana di Milazzo, dove appunto si inserisce anche la nuova infrastruttura del Parco tra i Mari.
Alla scala urbanistica, la posizione nodale dell’area rispetto alle principali arterie cittadine, ai nodi ferroviari e autostradali, assegna alla stessa il ruolo di una naturale “porta” di accesso alla penisola mamertina o (in uscita) al territorio stesso, anche grazie agli imponenti flussi turistici da e verso le Isole Eolie.
Alla scala urbana è certamente la vicinanza al complesso della Montecatini (destinato a futura riqualificazione) ad introdurre ulteriori suggestioni progettuali, unitamente alla forte relazione con le richiamate attività portuali e urbane del vicino centro storico, che devono essere riammagliate e reinserite nel più generale processo di riqualificazione urbana e ambientale in atto nella cittadina.
Rilevante appare, segnalare che l’intero lotto di intervento ricade in un’area di interesse archeologico, ai sensi dell’art.142, c.1, lett. M; area che ha già restituito ad oggi una notevole quantità di reperti archeologici in zone molto prossime a quella di intervento.
Analisi dell’area di intervento
Il comparto di intervento, esteso circa 27.000,00 mq è contraddistinto da una situazione estremamente pianeggiante, caratterizzata dalla perfetta orizzontalità del vecchio piano del ferro oramai in disuso, e dalla importante preesistenza della Stazione vecchia.
Da un punto di vista urbano, il lotto ricade in un’area di margine, decisamente antropizzata, caratterizzata dal suo lieve distaccarsi in altezza dai tracciati stradali circostanti e dalla presenza vicina e importante dei valori paesaggistici della Piana di Milazzo.
Analisi dell’area di intervento e del sistema vincolistico
In forza dell’importanza strategica che il lotto di intervento riveste per l'intera cittadina di Milazzo, l'analisi dello “stato di fatto” non può limitarsi all’area di sedime, ma deve dilatarsi ad abbracciare le molteplici relazioni ed emergenze contestuali del paesaggio “denso” e articolato in cui la stessa è immersa.
Le strategie di analisi e di intervento vanno dunque verificate alle diverse scale del paesaggio, del territorio e della città.
Alla scala paesaggistica, infatti, la vivacità urbana della cittadina si estende fino al promontorio e all’area SIC “ITA030032 Capo Milazzo”, che lo impreziosisce; per poi immergersi nella suggestiva aura del mito. La Grotta di Polifemo, le prospicienti Isole Eolie, il vicino paesaggio dello Stretto, la presenza costante dell’Etna, e tutte le altre emergenze storico-culturali e naturalistiche del circondario, dal Castello a Monte Trino, costituiscono una dorsale di punti significativi che connota e struttura il paesaggio circostante, distendendosi dall’estremità del Capo fino alle aree periferiche e alla Piana di Milazzo, dove appunto si inserisce anche la nuova infrastruttura del Parco tra i Mari.
Alla scala urbanistica, la posizione nodale dell’area rispetto alle principali arterie cittadine, ai nodi ferroviari e autostradali, assegna alla stessa il ruolo di una naturale “porta” di accesso alla penisola mamertina o (in uscita) al territorio stesso, anche grazie agli imponenti flussi turistici da e verso le Isole Eolie.
Alla scala urbana è certamente la vicinanza al complesso della Montecatini (destinato a futura riqualificazione) ad introdurre ulteriori suggestioni progettuali, unitamente alla forte relazione con le richiamate attività portuali e urbane del vicino centro storico, che devono essere riammagliate e reinserite nel più generale processo di riqualificazione urbana e ambientale in atto nella cittadina.
Rilevante appare, segnalare che l’intero lotto di intervento ricade in un’area di interesse archeologico, ai sensi dell’art.142, c.1, lett. M; area che ha già restituito ad oggi una notevole quantità di reperti archeologici in zone molto prossime a quella di intervento.
Analisi dell’area di intervento
Il comparto di intervento, esteso circa 27.000,00 mq è contraddistinto da una situazione estremamente pianeggiante, caratterizzata dalla perfetta orizzontalità del vecchio piano del ferro oramai in disuso, e dalla importante preesistenza della Stazione vecchia.
Da un punto di vista urbano, il lotto ricade in un’area di margine, decisamente antropizzata, caratterizzata dal suo lieve distaccarsi in altezza dai tracciati stradali circostanti e dalla presenza vicina e importante dei valori paesaggistici della Piana di Milazzo.


CONTATTI

Innovazione Architettonica e Riqualificazione Urbana Siciliana
nextbuild@libero.it
+39 090 240 86 46
Via Spiaggia di Ponente 6
98057 - Milazzo (ME) - Italia
Muzzuni Expo
Arch. Giovanni Fiamingo
ANNO:
LUOGO:
PROGETTO:
CLIENTE:
SUPERFICIE:
2025
Alcara Li Fusi
Muzzuni Expo
Pubblico
40 mq
“Muzzuni EXPO” è un piccolo allestimento multimediale inaugurato lo scorso 23 giugno, connesso ad un antichissimo rito pagano, considerato uno dei più antichi d'Italia, legato al culto di Demetra e al solstizio d'estate, con legami con il mondo contadino e contaminato nel tempo da elementi cristiani: infatti, viene celebrato il 24 giugno, in concomitanza con la festa di San Giovanni Battista.
Il nome "Muzzuni" potrebbe derivare da una brocca senza collo (mozzata), o dal grano falciato e raccolto in fascioni (mazzuna), o ancora da San Giovanni decollato.
La sua presenza è ulteriormente arricchita dalle “pizzare” che adornano i vari altarini sparsi dentro lo spazio urbano: che sono dei tessuti tradizionali, spesso realizzati a telaio, che vengono anche appesi alle pareti e sui balconi per abbellire il paese, caratterizzate da precisi motivi geometrici romboidali.



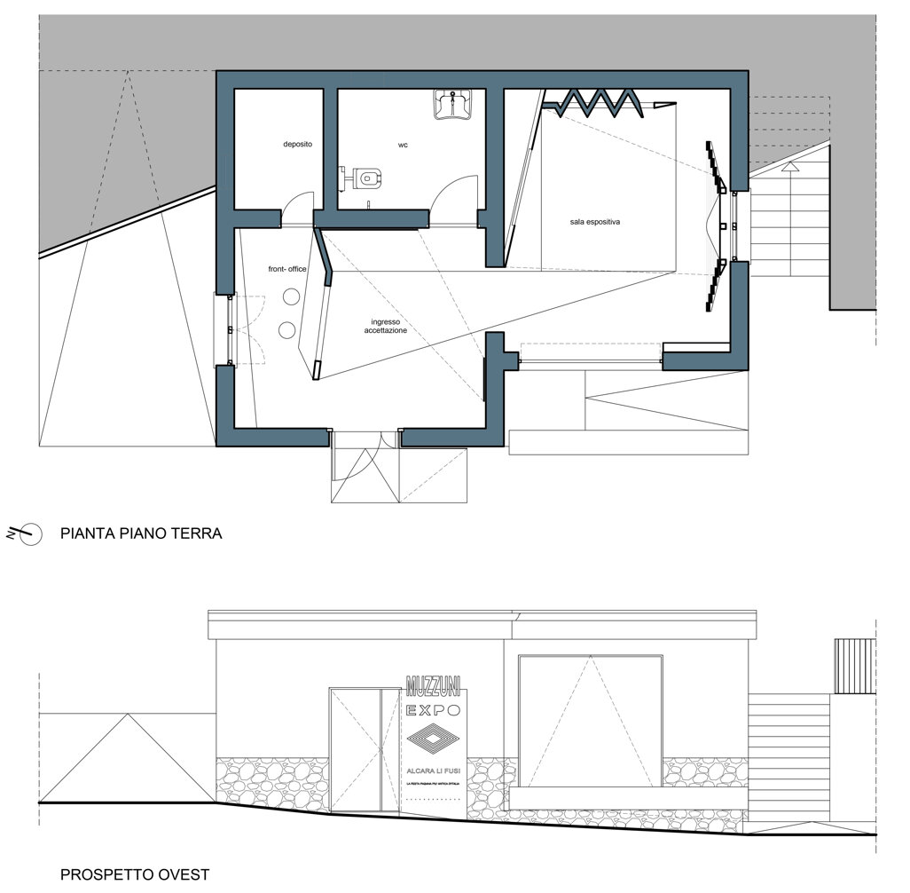
Grazie alla riqualificazione di un edificio preesistente, denominato “ex Combattenti”, ci si è prefissi di restituire alla città di Alcari Li Fusi una testimonianza culturale sul tema, attraverso uno spazio appositamente dedicato. La festa del Muzzuni è peraltro iscritta nel registro delle eredità immateriali della Regione Sicilia e tale intervento ne vuole enfatizzare l’importanza e farla conoscere a turisti e visitatori durante tutto l’anno.
Pur trattandosi sostanzialmente di un allestimento, e nella limitatezza delle risorse disponibili, il progetto consegue innanzitutto l’implementazione del ruolo e del valore urbano dell’immobile, attraverso chirurgici interventi di ridefinizione del suo “affaccio” pubblico: attraverso il grande pannello intagliato in acciaio corten e l’inserimento di una conviviale seduta urbana maiolicata, che consente anche la breve sosta di visitatori o dei giovani, che possono “sbirciare” l’allestimento interno ed essere così stimolati ad entrare.


L’organizzazione dei due modesti ambienti interni e l’esigenza di costruire un percorso narrativo articolato e fluido, è stata affidata ad un “nastro” che avvolge lo spazio ed il visitatore, certamente memore della lezione spaziale del Memoriale degli Italiani ad Auschwitz (studio BBPR, 1979).
Dal punto di vista funzionale, il primo di questi spazi è dedicato all’accoglienza e ricezione dei visitatori, dove un operatore/cittadino si farà ambasciatore di tale tradizione e ne racconterà le caratteristiche mediante l’ausilio di banner illustrativi; il secondo ambiente consentirà invece di interagire e rivivere, attraverso contenuti multimediali, l’intera celebrazione.

L’organizzazione dei due modesti ambienti interni e l’esigenza di costruire un percorso narrativo articolato e fluido, è stata affidata ad un “nastro” che avvolge lo spazio ed il visitatore, certamente memore della lezione spaziale del Memoriale degli Italiani ad Auschwitz (studio BBPR, 1979).
Dal punto di vista funzionale, il primo di questi spazi è dedicato all’accoglienza e ricezione dei visitatori, dove un operatore/cittadino si farà ambasciatore di tale tradizione e ne racconterà le caratteristiche mediante l’ausilio di banner illustrativi; il secondo ambiente consentirà invece di interagire e rivivere, attraverso contenuti multimediali, l’intera celebrazione.
A partire dal front-office, dunque, si materializza un percorso fluido e organico, dove contenuti e segni, integrati a pavimento/pareti/soffitto, avvolgono il fruitore e lo guidano attraverso una narrazione enfatizzata da un nastro blu che, snodandosi nello spazio, conduce all’elemento principale di tutta la celebrazione, che è l’altare del “muzzuni”: dove una scenografica teca tridimensionale, che riprende forme e colori degli antichi arazzi, accoglie il prezioso reperto.
La giusta ambientazione per la comprensione dell’antico rito verrà assicurata attraverso il sistema di vani espositivi e pannelli espositivi, dei monitor, una illuminazione scenografica, un impianto sonoro, la possibilità di interazione multimediale e un diffusore di flagranze elettrico che riprodurrà gli odori della festa.











